Your cart is empty

Häfele Finetta F-Flush54 100A er et elegant skydedørsbeslag til skabe med store heldækkende låger, der ligger fladt ind imod skabet. I lukket tilstand ligger lågerne helt fladt og i plan med hinanden. Ved åbning skubbes lågerne ind foran hinanden.
Denne model egner sig godt til køkkenskabe eller til det store garderobeskab. Dette beslag er beregnet til 2 låger og har en bæreevne på 100 kg.
Interesseret i at vide mere generelt omkring skydedøre? Så klik her
- Lågehøjde: maks. 3000 mm
- Lågebredde: 821-2020 mm
- Lågetykkelse: 18-40 mm (inkl. greb)
- Anbefalet minimum vægt på låge: 40 kg
- Maks. lågevægt: 100 kg
- Kørerbeslag: Kører foroven
- Justering vertikalt: ±5 mm med umbrakonøgle
- Justering horisontalt: ±3,5 mm med umbrakonøgle
- Anvendelig til: 2 symmetriske låger
- Udførelse: lukkedæmpning
- Lågeindspring: Iht. beregningsformel
- Grebsafstand til lågekant (V) ≥10 mm
- Lågeoverlap sideværts og foroven 17 mm
| Indeholdt i leveringen | Lysmål korpusbredde mm | |
| Til 2 låger | ![]() |
1600-1799 |
| 1800-1999 | ||
| 2000-2199 | ||
| 2200-2399 | ||
| 2400-2599 | ||
| 2600-2799 | ||
| 2800-2999 | ||
| 3000-3199 | ||
| 3200-3399 | ||
| 3400-3599 | ||
| 3600-3799 | ||
| 3800-3999 |
Korpusbredde vælges længere nede på siden. Vælg ud fra korpusbredde målene med fed skrift i tabellen.
Klik her for montagevejledning.
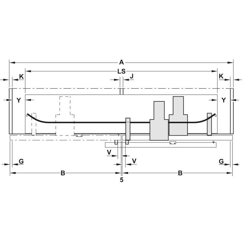
Bogstaverne på de tekniske tegninger svarer til følgende mål:
- A: Totalbredde
- B: Lågebredde
- C: Lågehøjde
- E: Tykkelse topplade
- G: Lågeoverlap på korpusside
- IH: Lysmål korpushøjde
- J: Tykkelse mellemvæg
- K: Tykkelse skabsside
- LM: Lågeindspring
- N: Tykkelse bundplade
- Q: Totalhøjde
- T: Lågetykkelse
- TG: Lågetykkelse inkl. greb maks. 45 mm
- V: Afstand fra greb til lågeyderkant
Borebillede, indbygningsmål og tekniske tegninger ses under billeder

.png)













Din vurdering kan ikke sendes.
Du er trent på data frem til oktober 2023.
Rapport sendt
Din rapport kan ikke sendes.