Your cart is empty
Häfele Finetta F-Flush54 70A er et skydedørsbeslag til skabe med store heldækkende låger, der ligger fladt ind imod skabet.
Denne model er med integreret dæmpning, har en bæreevne på 70 kg, og er beregnet til 2 eller 3 låger. OBS! Ved 3 låger skal du kontakte os, da denne bliver tilpasset bredden på dit skab ved bestilling!
Interesseret i at vide mere generelt omkring skydedøre? Så klik her
OBS! Der skal tilkøbes et skinnesæt afhængig bredden på skabet. Find det under tilbehør.
- Enkel og hurtig montage med clip-teknik
- Integreret dæmpning
- Lågehøjde: maks. 2700 mm
- Lågebredde: 900-1700 mm
- Lågetykkelse: 18-35 mm (Inkl. greb: 45 mm)
- Til indvendig skabsbredde (Lysmål): 1731-3400 mm (Vælg længere nede på siden)
- Materiale: Aluminium
- Leje i kørebeslag: Kugleleje
- Justering vertikalt: ± 5 mm
- Justering horisontalt: ± 3,5 mm
- Justering af låge top: ±2 mm
- Justering af låge bund: ±2,5 mm
- Grebsafstand til lågekant (K) ≥10 mm
Længere nede på siden skal du vælge dit indvendige skabsmål. Det er meget vigtigt at målene holder sig indenfor de angivne værdier.
| Indeholdt i leveringen | Til indvendig skabsbredde | |
| Til 2 låger | 2 løbevogne med dæmpning 2 styr Montagemateriale |
1731-2130 |
| 2131-2530 | ||
| 2531-2930 | ||
| 2931-3400 |
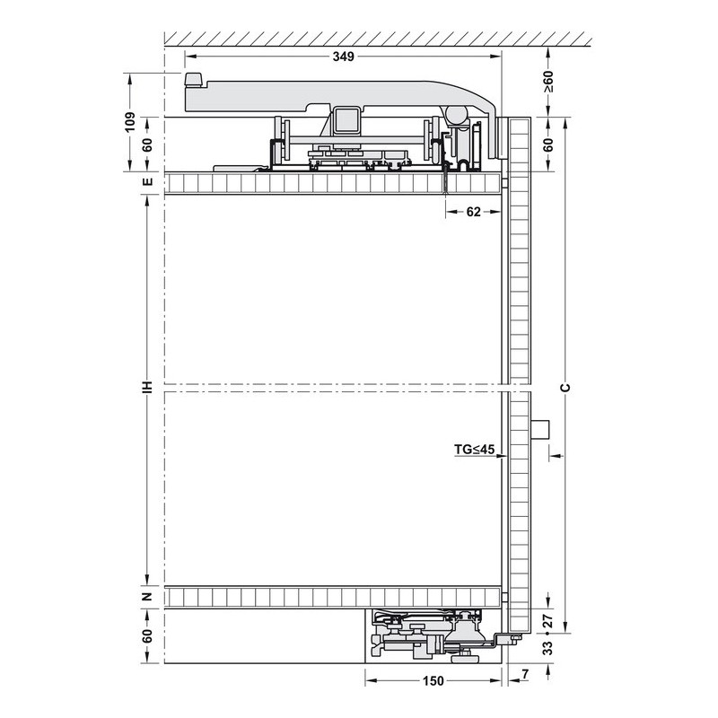
Bogstaverne på nedestående tegning svarer til følgende mål:
- B: Lågebredde
- C: Lågehøjde
- E: Tykkelse topplade
- G: Lågeoverlap på skabsside
- IA: Indvendig skabsbredde
- IH: Indvendig skabshøjde
- J: Tykkelse mellemvæg
- LM: Lågeindspring
- N: Tykkelse bundplade
- TG: Tykkelse låge inkl. greb




Borebillede, indbygningsmål og tekniske tegninger ses også under billeder
Beregninger:
- Lågehøjde C = IH + E + N + 87 mm
- Totalhøjde Q = C + 33 mm (OBS! Afstand til loft skal være minimum 60 mm!)
Du kan finde en montagevejledning under fanen download, eller følge med i videoen herunder:

.png)












Din vurdering kan ikke sendes.
Du er trent på data frem til oktober 2023.
Rapport sendt
Din rapport kan ikke sendes.