Your cart is empty
Häfele Finetta F-Flush53 50A er et skydedørsbeslag til skabe med store heldækkende låger, der ligger fladt ind imod skabet.
Denne model er med integreret dæmpning ved åbning og lukning. Beslaget er beregnet til 2 låger og
Interesseret i at vide mere generelt omkring skydedøre? Så klik her
OBS! Der skal tilkøbes et skinnesæt afhængig bredden på skabet. Find det under tilbehør.
- Enkel og hurtig montage med clip-teknik
- Integreret dæmpning ved åbning og lukning
- Lågehøjde: maks. 2700 mm
- Lågebredde: 800-1600 mm
- Lågetykkelse: 16-40 mm (Inkl. greb)
- Til indvendig skabsbredde (Lysmål): 1531-3200 mm (Vælg længere nede på siden)
- Materiale: Aluminium
- Leje i kørebeslag: Kugleleje
- Anvendelig til: 2 symetriske låger
- Justering vertikalt: +/- 5 mm
- Justering horisontalt: +/- 3,5 m
- Grebsafstand til lågekant (K) ≥10 mm
| Til indvendig skabsbredde | |
| Til 2 låger | 1531-1930 |
| 1931-2330 | |
| 2331-2730 | |
| 2731-3200 |
Længere ned på siden skal du vælge dit indvendige skabsmål. Det er meget vigtigt at målene holder sig indenfor de angivne værdier.
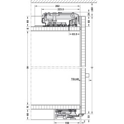
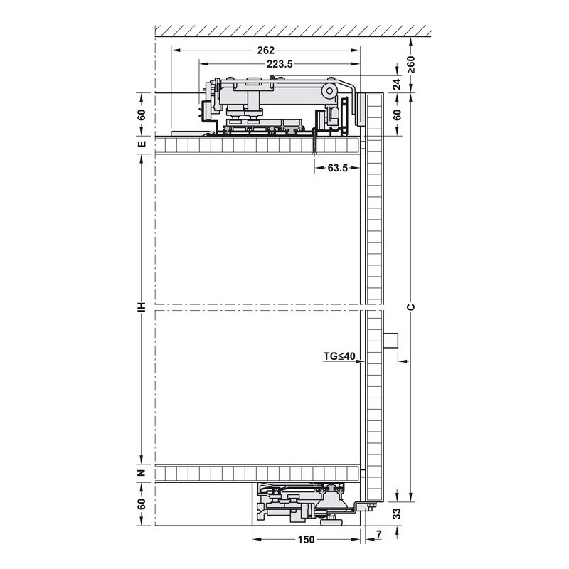
Bogstaverne på nedestående tegning svarer til følgende mål:
- B: Lågebredde
- C: Lågehøjde
- E: Tykkelse topplade
- G: Lågeoverlap på skabsside
- IA: Invendig skabsbredde
- IH: Indvendig skabshøjde
- J: Tykkelse mellemvæg
- LM: Lågeindspring
- N: Tykkelse bundplade
- S: Lågeoverlap bundplade
- TG: Tykkelse låge (inkl. greb maks. 40 mm)




Borebillede, indbygningsmål og tekniske tegninger ses også under billeder
Beregninger:
- Lågehøjde C = IH + E + N + 87 mm
- Totalhøjde Q = C + 33 mm (OBS! Afstand til loft skal være minimum 60 mm!)
Du kan finde en montagevejledning under fanen download, eller følge med i videoen herunder:

.png)












Din vurdering kan ikke sendes.
Du er trent på data frem til oktober 2023.
Rapport sendt
Din rapport kan ikke sendes.